4 Sütunlu OtoPark Lifti
4 sütunlu otopark lifti, 4 ton kaldırma kapasitesi ile araçların güvenli, dengeli ve pratik bir şekilde park edilmesini sağlar. Geniş platform yapısı sayesinde özellikle alan tasarrufu sağlamak ve araç sayısını artırmak için ideal bir çözümdür.
Kullanımı kolay, dayanıklı ve ekonomik yapısıyla öne çıkan bu sistem, otoparklar, siteler, galeriler ve ticari alanlarda tercih edilen profesyonel bir park çözümüdür. Araçları üst üste konumlandırarak dar alanlarda maksimum verimlilik sunar.
Farklı modellerimiz ve özel tekliflerimizle ihtiyaçlarınıza en uygun otopark lift çözümlerini sunuyoruz.
4 Sütunlu Otopark Lifti 4 Ton Kapasiteli Park Sistemi
4 sütunlu otopark liftimiz, araç park alanlarında maksimum verimlilik sağlayan, dayanıklı ve profesyonel bir park çözümüdür. Hidrolik kaldırma sistemi sayesinde araçları güvenli ve dengeli bir şekilde istenilen yüksekliğe kaldırarak alan tasarrufu sağlar.
Özellikler:
- Model No: L4
- Tür: 4 Sütunlu Otopark Lifti
- Kaldırma Kapasitesi: 4 ton
- Güç: 2.2 kW
- Hareket Sistemi: Hidrolik
- Güç Kaynağı: Elektrik
- Kontrol Paneli: Manuel kontrol paneli
- Ek Donanım: Yağ damlama tepsisi, kriko tablası
Güvenlik Özellikleri:
- Emniyet kilit sistemi
- Acil durdurma butonu
- Aşırı yük koruması
- Halat kopma emniyeti
Hizmetler:
- Yedek parça desteği
- Teknik servis ve destek
Açıklama:
Bu 4 ton kapasiteli 4 sütunlu otopark lifti, özellikle otopark alanlarında araç sayısını artırmak ve alanı daha verimli kullanmak amacıyla tasarlanmıştır. Uzun platform yapısı sayesinde binek araçlar, SUV ve hafif ticari araçlar kolaylıkla park edilebilir.
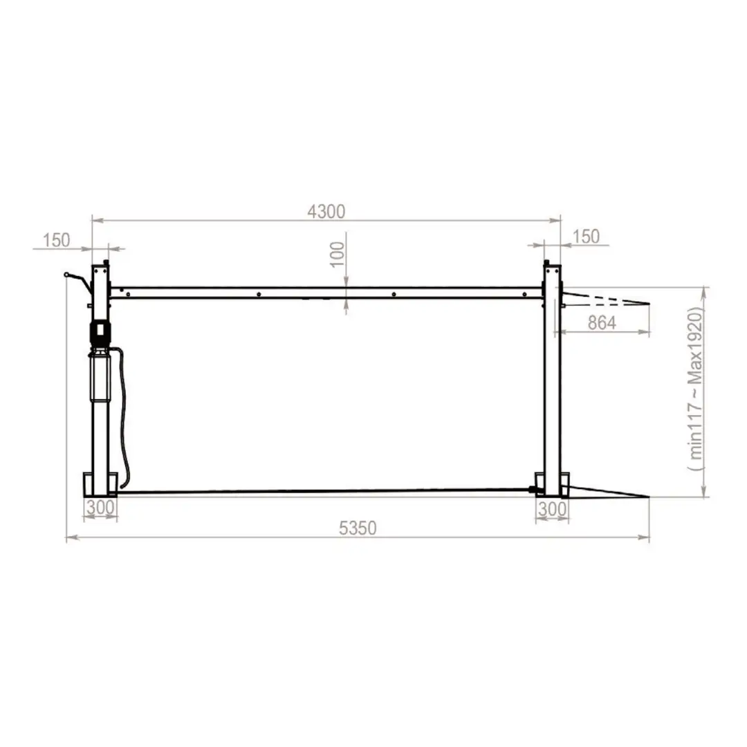
Yaklaşık 1.9 metre kaldırma yüksekliği ile alt park alanı oluşturarak dar alanlarda bile çift katlı park imkânı sunar. Hidrolik sistemi sayesinde sessiz, stabil ve güvenli bir çalışma sağlar. Manuel kontrol paneli ile lift hareketleri kolayca yönetilebilir.
Gelişmiş güvenlik sistemleri sayesinde hem araç hem de kullanıcı için maksimum güvenlik sunan bu sistem, otopark projeleri, site içi kullanımlar, galeriler ve ticari alanlar için ideal bir çözümdür.
| Color | Blue |
|---|
İlgili ürünler
-
İndirim!


4 Sütunlu Oto Lift
250.000₺Orijinal fiyat: 250.000₺.230.000₺Şu andaki fiyat: 230.000₺. -


-


-


-


-


-


-


-












Değerlendirmeler
Henüz değerlendirme yapılmadı.